“Urban Retreat” -都市の別荘-

京都市中京区にあるマンションの高層階。100㎡超えのお部屋を“Urban Retreat”(都市の別荘)をテーマに、贅沢な1LDKにリノベーション。
今なお古の薫りに触れる古都の中心は、都市の躍動と日本の雅が共存するエリア。そこに住まう歓びをより堪能できるよう、日本的な美を随所に散りばめながらも外国の空気感も漂う空間です。












”和の趣を纏う優美な室内人生の美しい瞬間を心ゆくまで堪能できる邸宅を”
和と贅。
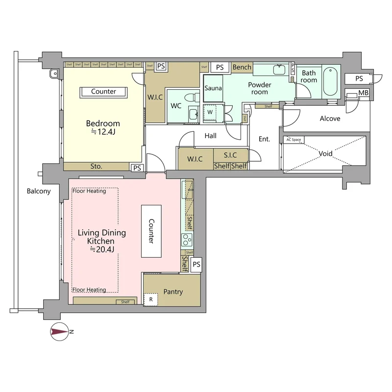
100㎡を1LDKとして設計しているため、各所が贅沢に空間が取られています。
玄関部分はひっそりとした京都の路地をイメージし、玄関ドアを開けても 奥が見通せない設計としました。
土間部分にはやわらかな雰囲気をもたらす、丸窓や違い棚風の棚板 を設え和の趣を演出。
靴だけでなく、ゴルフバックやキャリーケースなどの大きな荷物を置ける収納も確保しました。
来客時にもお客様の洋服を 収納しておくことができます。
昼は窓から優しい光が差し込み、夜は間接照明が室内の雰囲気を作り上げるリビング。
今は建てることができない高層階のマンションの為、京都の町も一望できます。
ニッチスぺ―スにはアートを、ダイニングでは晩餐を。
料理を愉しむだけではなく、デザインとしても存在感のある黒いキッチンは田中工藝の作品。
まわりの設えも揃え、世界観が際立ちます。
ワインセラーのスペースをキッチン下に設け、冷蔵庫もパントリーの中に設置することで、
生活感のない引き締まった空間になりました。
浴室には、神戸メディケア製のサウナ。
断熱性・保温性にこだわった高温サウナ。
熱気(ロウリュ)とドライサウナどちらもお楽しみ頂けます。
浴室で水風呂の後「ととのう」ためのチェアやポンチョやバスタオルをかけておけるフックも設置しています。
ゆったりと深い寛ぎの時間を作れるよう、本宅ではなく、あくまで『別荘』としての充実を目指しました。
※阪急阪神不動産のリノベーション済マンションブランド〈スタイルズ〉の情報はこちらから









