海外映画のようなシンプル&ホテルライク

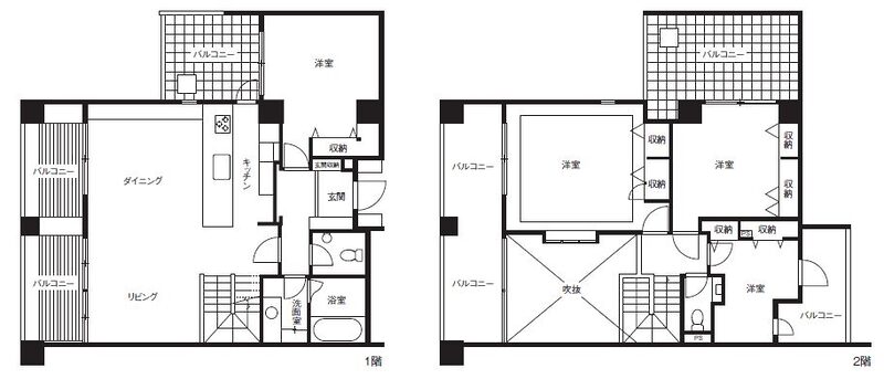
立地とお部屋の大きさが気に入り、購入されたコーポラティブハウス。
コーポラティブハウスならではのゆとりある空間でしたが、内装がお好みでなかったこと、経年劣化が目立ち始め水廻りを交換したいと思い、リフォームのご検討を開始されました。











■阪急阪神不動産をお選びいただいた理由
複数の会社をご検討されていたK様。お打ち合わせの段階からK様のご要望を細やかにヒアリングし、リノベーション後のイメージをパースでご提案したところ、そのイメージがK様の思い描いていたものと合致し、当社をお選びくださいました。
■プランの希望・条件
・『ホテルライク』をテーマに、まるで海外映画に出てくるような‟日常を非日常へと昇華させる”空間
・家族が集まるキッチンはデザインと利便性の両立を図りたい
■こだわりポイント
□すっきりとした印象にまとめた、洗練された空間づくり
不要な装飾や凹凸を極力排除し、「見切り材を最小限に抑える」「階段側面に巾木を設けない」など、細部にまでこだわることで、すっきりとした美しい空間を実現しました。
素材には、シンプルでありながらも上質なものを厳選し、空間全体に品格をもたらしています。
□非日常感とくつろぎの融合
ホワイトカラーを基調とすることで、空間全体が明るく、生活感を感じさせない都会的でスタイリッシュな印象に仕上げました。
真っ白な空間の中にも心地よさを感じられるよう、照明には暖色系の明るさや色味に調整可能な器具を採用し、くつろぎのひとときを演出しています。
□キッチンは‟デザイン性”と‟利便性”を両立
家族が集うキッチンには、デザイン性と素材の質感にこだわり、重厚感と高級感を兼ね備えたクチーナを採用しました。
セラミック製のカウンターと塗装仕上げの扉を組み合わせることで、機能性と美しさを両立。
さらに、アイランド型のレイアウトにより回遊性のある動線が生まれ、日常の調理はもちろん、大人数でのパーティーシーンでも快適にお使いいただけます。
床材には大理石調のフローリングを採用し、LDK全体に品格ある空気感をもたらしています。
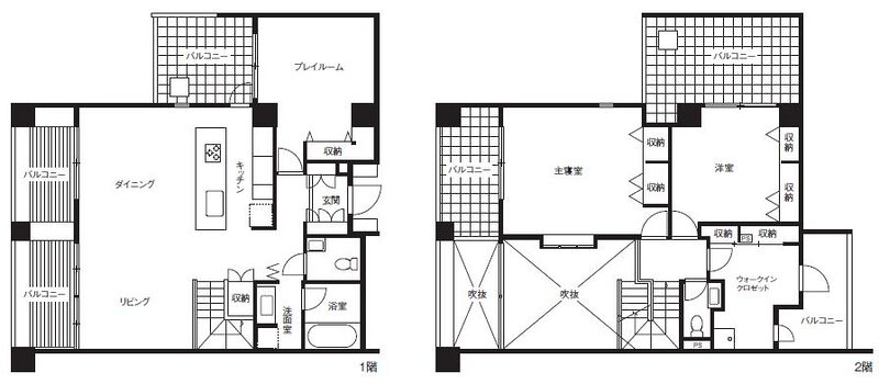
□お子様も安心して暮らせる家
元々はスケルトンタイプの階段でしたが、お子様が安心して昇降できるよう、蹴込み板と壁を新たに造作し、安全性を高めました。この変更により、お子様への配慮はもちろんのこと、階段下には収納スペースを確保でき、また空間全体にも調和が生まれました。
□2階の利便性の向上
2階にはウォークインクローゼットを新設し、その内部に洗濯スペースを設けました。また、トイレの洗面ボウルも大型のデザインを採用し、多用途に使えるようにしました。これにより、K様の暮らしに一層フィットした空間へと仕様を変更しています。











さまざまな施工制限がある中で、お施主様の理想の住まいを、一つひとつ丁寧に形にしてまいりました。素材選びには上質さを追求し、細部の納まりにまでこだわることで、空間全体に美しさと調和をもたらすことができました。
大切なお住まいをお任せいただきましたこと、心より感謝申し上げます。
これからも、ご家族皆様がこの住まいで、たくさんの思い出を重ねながら、笑顔あふれる日々をお過ごしいただけますよう、心よりお祈り申し上げます。